ESKAR Architecture
ESKAR Architecture
Menu
Ana Sayfa
Projeler
Hizmetler
Hakkımızda
İletişim
3D Atölye
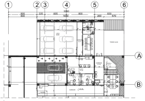
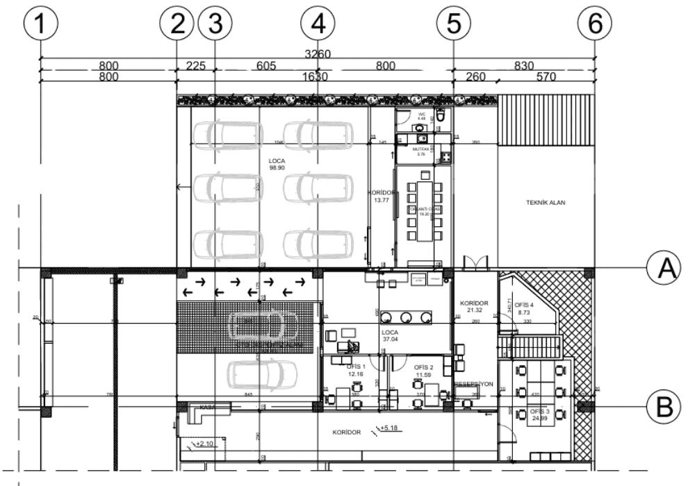
General Petroleum Showroom Projesi
Proje: GP Showroom Projesi
Konum: İstanbul, Beylikdüzü / Türkiye
Proje Alanı: 400 m²
Yıl: 2024
Proje, marka hikâyesi ve ürün çeşitliliğini ziyaretçiye akıcı bir deneyimle aktarırken; kurumsal renkler, modern yüzeyler ve güçlü ışık kurgusuyla etkileyici bir showroom atmosferi oluşturur.
Tüm Projelere Dön